Haus Wolsier
Bei Haus Wolsier handelt es sich um ein ehemaliges Stallgebäude eines leider nicht mehr vorhandenen Rittergutes im Ort Wolsier im Havelland. Es wurde vermutlich Mitte des 19. Jahrhunderts erbaut und wurde bereits vor der jetzigen Sanierung und Umbaus als Wohnhaus genutzt. Nun soll es zu einem Haus für zwei Familien werden, die es gemeinschaftlich als Ferienhaus nutzen werden.
Im Erdgeschoss werden die gemeinschaftlichen Räume, wie Küche, Wohn- und Essraum sowie einem großen Atelier angeordnet und im oberen Geschoss die Schlafräume für die beiden Ehepaare und ihre Gäste.
Das Projekt befindet sich aktuell in der Umsetzungsphase:

Ansicht Straßenseite.

Grundrissplanung Dachgeschoss.


Entwurf Gartenseite.
Haus Garz
Schrittweiser Umbau und Umnutzung eines ehemaligen Bauernhauses zum Sommerhaus für einen Berliner Kurator im Havelland. Aus einer für landwirtschaftliche Zwecke sehr kleinteiligen, aber notwendigen Raumaufteilung entsteht durch Zusammenlegung von mehreren Räumen eine großzügige und heutigen Ansprüchen gerecht werdende Wohnsituation.
Nach einer eingehenden Analyse der örtlichen Situation entstand ein neuer Grundriss, der sich auf die schönsten Ausblicke in die Landschaft orientiert und mehr Licht ins Haus bringt. Die Umbaumaßnahmen werden in mehrere Abschnitte aufgeteilt, so dass mit einem überschaubaren Budget aus dem kleinen Bauernhaus ein gemütliches Sommerhaus werden kann, ganz nach den persönlichen Anforderungen und Wünschen des Bauherrn.

Haus Garz nach der ersten Umbauphase.

Haus Garz, Innenausbau.
Sonnenhaus Garz
Sonnenhaus Garz wird zu einem kleinen Ferienhaus im schönen Havelland umgebaut. Ursprünglich war es ebenfalls ein Haus für eine Kleinstlandwirtschaft und wurde Anfang des vergangenen Jahrhunderts erbaut. Es ist eines der wenigen noch ursprünglich erhalten gebliebenen kleinen Landhäuser im Haveldorf Garz. Mit behutsamen Eingriffen wird das Gebäude heutigen Ansprüchen gerecht: Einbau eines Bades, Umorganisation des Erschließungsbereiches und Einbau einer Küche.
Der Umbau des Sonnenhauses erfolgt ebenfalls in kleineren Bauabschnitten, so dass die Kosten sich an den Möglichkeiten der Eigentümerin orientieren.
Zusammen mit Haus Garz wird hier ein gemeinschaftliches Wochenend- und Ferienhausprojekt gestaltet, der gemeinsam genutzte Garten verbindet die beiden Gebäude zu einem der Ruhe und der Erholung dienendem Ensemble.
Informationen zum Sonnenhaus Garz gibt es unter: www.sonnenhaus-garz.de

Sonnenhaus Garz, Straßenansicht.

Umbauplanung Erdgeschoss.
Sonnenhaus bei Putbus
Umbau eines kleinen Arbeiterhauses auf einem ehemaligen Gutshof zum Ferienhaus mit 4 Wohnungen für insgesamt 14 Personen. Die Grundrisse der Wohnungen sind sehr kompakt und genau auf die Bedürfnisse von Feriengästen zugeschnitten. Im Dachgeschoss stoßen sich auch groß gewachsene Menschen nicht den Kopf und trotz der Kompaktheit machen die Wohnungen einen sehr großzügigen Eindruck. Es wurde an alles gedacht und das liegt auch an den beiden Bauherrinnen, die nur das Beste für Ihre Gäste wollen. Für 2011 planen wir nun noch ein Saunagebäude mit einem eigenen Küchenbereich, damit die Gäste auch mal gemeinschaftlich Kochen können.
Im Sonnenhaus können Sie auch Urlaub machen, weitere Informationen unter: www.ruegen-gutshaus.de

Sonnenhaus in Ketelshagen bei Puttbus.

Ansicht Gartenseite.

Als nächser Ausbauschritt ist der Bau eines Saunagebäudes geplant.
Haus Lipsitz
Umbau und Umnutzung eines ehemaligen Gutsgebäudes in einer historischen Gartenanlage zu einem Zentrum für Garten, Kunst, Architektur und Gesellschaft auf Rügen, als kleines Tagungshaus mit insgesamt 9 Ferienwohnungen für 26 Personen. Für dieses Projekt wurden alle Komponenten von unserem Büro erarbeitet: Entwurfs- und Genehmigungsplanung einschließlich einem denkmalgerechten Aufmaß, Finanzierungs- und Wirtschaftlichkeitsberechungen, Fördermittelbeantragung sowie Erstellung eines Finanzierungskonzeptes. Letztendlich kam es nicht zur Umsetzung des Projektes, da sich Verkäufer und Käufer des Objektes nicht über den Kaufpreis einigen konnten. In Mecklenburg-Vorpommern gibt es nach wie vor eine Vielzahl an leerstehenden und ungenutzten Gutshäusern, die auf Grund ihres sehr desolaten Zustandes keine neuen EigentümerInnen finden.
Weiterführende Informationen erhalten Sie unter: www.gutshaeuser.de

Haus Lipsitz Ansicht.

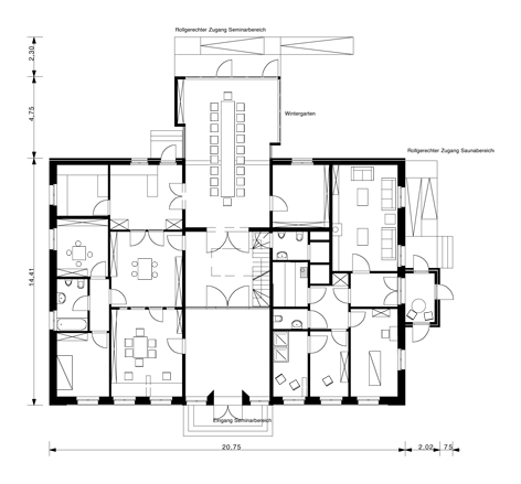
Haus Lipsitz, Umbauplanung Erdgeschoss.

Haus Lipsitz, Entwurf für Rekonstruktion der Garten- und Parkanlage von Jens Beck.

